CASE
INSIRUITE

Case înșiruite Iași cu personalitate

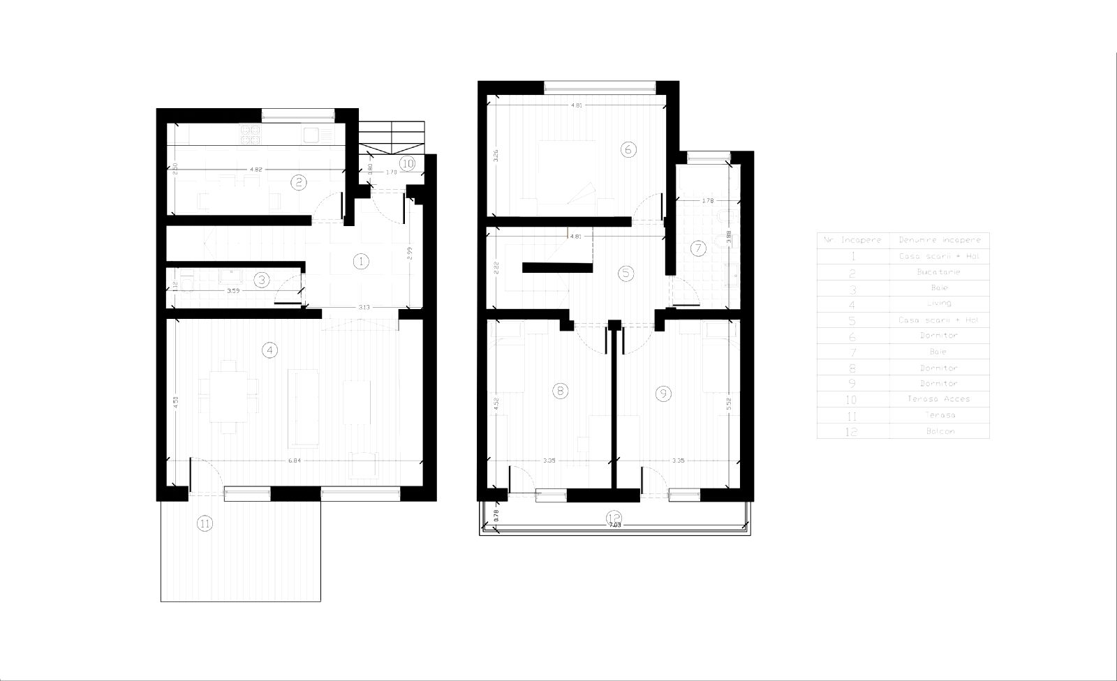
Sentimentul traiului în mijlocul unei comunități strânse și prietenoase poate fi obținut alegând una dintre aceste case înșiruite Iași construite de noi. Cu o suprafață utilă de 120 de mp, simetria acestor case înșiruite întâlnește nevoia de spațiu și confort și aduc un plus de valoare esteticii generale. Dispunând de două locuri de parcare, casele înșiruite sunt potrivite pentru familiile tinere, active, care își doresc să se bucure și de intimitatea unei curți proprii.

Avantaje casă

fundație hidro și termoizolantă, finisată cu tencuială decorativă mozaicată

acoperiș de tablă, marca Bilka

structură din zidarie portantă

trei plăci de beton (casa are acoperiș din beton, izolat atât la interior cât și la exterior, cu folie anticondens și tablă)

finisaje interioare

încălzire în pardoseală, cu termostate de ambient în fiecare cameră

băi prevăzute cu încălzire dublă, pardoseală și radiatoare de tip portprosop

uși interioare din lemn masiv (nuanță la alegere) și scară interioară din beton cu trepte placate cu lemn de culoarea ușilor.

poze pe toată perioada construcției

Avantaje complex rezidential Iași

zonă liniștită, aproape de de oraș

vedere panoramică

siguranță

stradă asfaltată

loc de joacă pentru copii

spații verzi

Descriere tehnica case insiruite

Constructie

Finisaje

Utilitati

Garantii si certificate

Contact

Te putem ajuta să îți îndeplinești un vis. Completează formularul de mai jos și
împreună vom găsi cea mai bună soluție pentru tine.